Син "регіонала" купив собі будинок за 22 мільйони доларів в Нью-Йорку
Син "регіонала" Миколи Янковського, колишнього власника концерну "Стирол", Ігор придбав у Нью-Йорку у Манхеттені таун-хаус за 22,375 мільйони доларів.
Про це повідомляє The New York Times.
"Таун-хаус разом із басейном на 60 футів, проданий за 22,375 мільйони доларів – це найбільший продаж тижня", - зазначає видання.
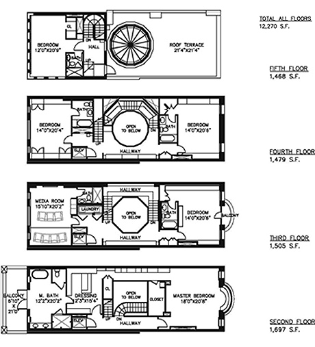
На додаток до басейну у шестиповерховому будинку є приміщення для фітнесу та масажу, великий зал-кінотеатр, п'ять спалень, включаючи спальню господаря, яка займає весь поверх, дві тераси та сад.
![]() |
![]() |
"Новий власник – Ігор Янковський, закордонний покупець, який купив будинок через товариство з обмеженою відповідальністю Top Estate. Янковського представляв брокер з компанії Leslie J. Garfield and Company Метью Лессер", - пише видання.
![]() |
Лессер лише повідомив, що таун-хаус буде використовуватися як приватний будинок, але спочатку на деякий час може здаватися в оренду.
Шестиповерховий будинок знаходиться за адресою 247 Central Park West та виходить вікнами до парку.
![]() |
![]() |
Його колишній власник використовував його для розміщення його великої колекції сучасного мистецтва. Також раніше власницею цього будинку була внучата племінниця Уолта Діснея.
![]() |
![]() |
| Всі фото з сайту Streeteasy.com |
Як відомо, раніше Янковський придбав бочку елітного французького вина за 270 тисяч євро на аукціоні у Франції і отримав можливість прийняти у себе екс-президента Франції Ніколя Саркозі з дружиною Карлою Бруні.
За твердженням прес-секретаря дому Bichot, в якому промисловець виграв аукціон, Жана-Давида Камю, "Янковський планує перепродати цю бочку за вищою ціною на аукціоні в Києві, щоб направити кошти на мистецькі програми для покинутих дітей".
Українська правда






